Iklan 300x250

40 siemens motor starter wiring diagram

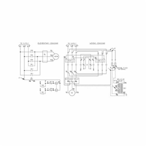
Furnas 14dp32a Wiring Diagram The motor starter is FURNAS 14DS 32A and there is a solid state overload relay 48ASF3M Wiring diagrams for Siemens NEMA contactors and starters.Controls Catalog Siemens and Furnas Brands ContactorsFurnas 14dp32a on Southland Electrical Supply NEMA Contactors and Starters | General Purpose | Siemens USA These starters are built rugged to withstand the most severe and demanding industrial and continuous duty commercial applications in the industrial and construction markets. This includes standard full NEMA sizes and motor matched half sizes exclusive to Siemens. Starters are available as open and enclosed with electronic overload protection ...

PDF Siemens Soft Start Manual - Elevator Systems, Inc to the load side of the starter. Wye or Delta motor connected in Line to Elevator starter. Figure 5a: Motor wiring for in line Applications A DANGER Hazardous voltage. Will cause death or serious injury. Disconnect power before working on this 12 equipment. Siemens Energy & Automation, Inc. 3333 Old Milton Parkway Alpharetta, GA 30202

Siemens motor starter wiring diagram

Siemens motor starter wiring diagram

Siemens Motor Wiring Diagram - Wiring Diagram and Schematics Siemens 14cub32aa Sie Crum Electric Supply Co. Heavy duty motor starters siemens deekay electricals 14due32aa control of a three phase ac typical wiring diagrams low voltage centers s7 200 plc ladder magnetic starter 14hsj32ba practical machinist largest motors the non reversing manual star delta explained dol 3tw7291 1a esp200 installation 3ru21164ab0 overload relay 11 14cub32aa sie crum how ... PDF SIRIUS 3RW52 Soft Starter 1 Support - Siemens SIRIUS 3RW52 Soft Starter . Industrial Controls Soft starters and solid-state switching devices SIRIUS 3RW52 Soft Starter Equipment Manual 04/2020 A5E35630451002A/RS-AE/005 Siemens Industry Online Support 1 Safety information 2 Description 3 Mounting and dismantling 4 Wiring 5 Parameter assignment 6 Commissioning 7 Functions 8 Siemen Motor Starter Wiring Diagram - Wiring Systems Siemens Dol Starter Wiring Diagram New Motor Starter Wiring Diagram. Siemens star delta starter wiring diagram pdf. 800 x 600 px, source: Siemens manual starters and switches are used in many applications for local control of equipment in the industrial or.

Siemens motor starter wiring diagram. Siemens Magnetic Starter Wiring Diagram - U Wiring Siemens motor starter wiring diagram. Magnetic motor starter wiring diagram basic for control contactor overload maintained switch installing the types single phase electrical diagrams 3 definite purpose 220v heavy duty starters siemens. Figure 1 is a typical wiring diagram for a three phase magnetic. PDF Power Product Catalogue - Siemens MOTOR STARTERS POWER PRODUCT Low Voltage Motor Starters Siemens SIRIUS IEC Starters The SIRIUS IEC Starter is the new generation of IEC HP rated magnetic starters, designed to ... b Wiring kit for single phase . a Late 2017. Enclosed Amps CSA Maximum HP Rating Pilot Devices Coil Typical Wiring Diagrams Siemens | PDF | Fuse (Electrical ... Manual Control. Class 11 - 3RV, SMF, MMS Wiring Diagrams Signaling Contact Class 11 - 3RV for Class 11 - 3RV Typical Wiring Diagrams—Class SMF. 3RV1921-1M. Typical Wiring Diagrams—MMS. AC Reversing Manual Starter and Manual Motor Starting Switches AC 2-Speed Manual Motor Starting Switches PDF Manual motor starters - Siemens Manual Motor Starters for Industrial and Construction Applications Class SMF Class SMF fractional horsepower starters provide On-Off control for small single phase motors up to 1 HP AC or up to ¾ HP DC. It also can operate two speed AC, single phase, one or two poles motors. The SMF product line is available with red or green

Siemens SMFFG2 Manual Motor Starters | Crescent Electric ... Detailed Description: Siemens manual starter provides manual on-off control of single or three phase AC motors where overload protection is not required or is provided separately. Compact construction and make these switches suitable for a wide range of industrial and commercial uses. Typical applications include small machine tools, pumps, fans, conveyors and many other types of electrical ... Siemens 3 Phase Motor Starter Wiring Diagram Wiring Diagrams August 10, 2021 16:07. Siemens 3 Phase Motor Starter Wiring Diagram - One of the most difficult automotive fix tasks that a mechanic or fix shop can put up with is the wiring, or rewiring of a car's electrical system. The misery in reality is that all car is different. in the manner of exasperating to remove, replace or fix ... PDF Star Delta Starter Control Wiring Diagram Answer 3 Phase Star Delta Motor Wiring Diagram ¦ 3 phase motor ¦ Earthbondhon How to wire star-delta motor starter. Power and control circuit. Star Delta Starter Power Connection with Wiring diagram by Evergreen Electrical Paano magwiring ng wye delta control circuit (step by step tutorial) Star Delta Starter Explained - Working Principle Star-delta ... PDF Motor Wiring Diagram - Motor Boss Motor Wiring Diagram U.S. ELECTRICAL MOTORS 12 Lead, Dual Voltage, Wye Start/Delta Run, Both Voltages or 6 Lead, Single Voltage, Wye Start/Delta Run Motors designed by US Motors for Wye Start, Delta Run may also be used for across the line starting using only the Delta connection. Damage will occur if the motor is operated with load for more ...

PDF SIEMENS . com . ElectricalPartManuals Magnetic Motor Starters Solid State Overload with Phase Loss Protection • Heavy Duty • Rugged Industrial Design • Dual Voltage, Dual Frequency Coils • Overload Test Feature • Front Removable Auxiliary Interlocks • Wide Range of Accessories • Easy Coil Access • High Accuracy Solid State Overload Protection • Class 10, 20, 30 Trip Available 3 Phase Siemens induction motor, 6 leads wiring method ... Hi all, I'm Nazirie from malaysia. I having difficulties regarding to the motor connection at the terminal block. The motor having 6 leads wire that i don't know how to connect whether in star or delta connection. I using direct on line DOL starter to start the motor. The motor comes with 6 leads that connect together by numbering 1-1, 2-2, 3-3. Siemens Motor Starter Wiring Diagram - Database - Wiring ... Siemens Motor Starter Wiring Diagram from . Effectively read a electrical wiring diagram, one offers to know how typically the components within the program operate. For example , if a module is usually powered up and it sends out a signal of half the voltage plus the technician will not know this, he'd think he has ... Siemens 14DUE32BA Heavy Duty Motor Starter, Solid State ... Siemens 14DUE32BA Heavy Duty Motor Starter, Solid State Overload, Auto/Manual Reset, Open Type, NEMA 1 General Purpose Enclosure, 3 Phase, 3 Pole, 1 NEMA Size, 10-40A Amp Range, A1 Frame Size, 110-120/220-240 at 60Hz Coil Voltage: Electronic Motor Starters: Amazon.com: Industrial & Scientific

Siemens 14DP32AA81 Class 14 Full Voltage Non-Reversing Motor Starter, 110  to 120/220 to 240 VAC Coil, 3-Poles

Siemens 14DP32AA81 Class 14 Full Voltage Non-Reversing Motor Starter, 110 to 120/220 to 240 VAC Coil, 3-Poles

3 Phase Electric Motor Starter Wiring Diagram - The Wiring Collection of single phase motor starter wiring diagram. Multispeed Motor Connections76-77 1- Phase76 3-Phase76-77 Programmable Lighting Controllers78 Class 886578. I had to do this a few times with floodlights to be used outside. Start stop 3 wire control. To read a wiring diagram, first you must know what fundamental elements are included in ...

DOL Starter 3TW7291-1A

DOL Starter 3TW7291-1A

PDF Basic Wiring for Motor Contol - Eaton Basic Wiring for Motor Contol Circuitry of a Starter The two circuits of a motor starter are the power and con-trol circuits. There are two circuits to a starter — the Power Circuit and the Control Circuit. The electricity that passes through the contacts of the starter, through the overload relay, and out to the motor, is called the power ...

Furnas and Siemens Motor Starter Coil Change Procedure

Furnas and Siemens Motor Starter Coil Change Procedure

Low-voltage motor control centers documentation - Siemens USA Siemens motor control center wiring diagrams are at your fingertips within seconds. Use the tool below to quickly find and download one-line diagrams. E-House solutions - the fast-track project approach E-Houses are customized, pre-assembled, and pre-tested modular power substations. They are ideally suited for use in situations where fast ...

TYPICAL WIRING DIAGRAMS SIEMENS - [PDF Document]

TYPICAL WIRING DIAGRAMS SIEMENS - [PDF Document]

Wiring Diagram Motor Starter - U Wiring A wiring diagram is a kind of schematic which utilizes abstract photographic symbols to show all the interconnections of parts in a system. 1 trick that We 2 to printing a similar wiring plan off twice. Starter Motor Starting System with regard to Starter Motor Diagram Wiring image size 300 X 400 px.

2014 Product Catalog

2014 Product Catalog

PDF Manual SIRIUS 3RM1 Motor Starter - Siemens The SIRIUS 3RM1 motor starters described here have been developed to carry out switching functions as part of a plant or machine. The 3RM1 motor starters are available as direct-on-line starters in Standard design without safety-related shutdown (3RM10) and in Failsafe design with safety-related shutdown motor starters:

Siemens 14CP32AA81 Heavy Duty Motor Starter, Ambient ...

Siemens 14CP32AA81 Heavy Duty Motor Starter, Ambient ...

PDF Dol Starter Wiring With Plc Diagram 'Siemens Dol Starter Wiring Diagram - Amalgamagency Co May 1st, 2018 - Siemens Dol Starter Wiring Diagram Direct Line Dol Motor Starter The Direct Line Motor Starter Dol Consist A Mccb Or Circuit Breaker Contactor And An Overload Relay For

DOL Starter | Direct Online Starter Diagram, Construction ...

DOL Starter | Direct Online Starter Diagram, Construction ...

Siemens (Furnas) Contactors & Motor Starters - State Motor ... Siemens is an industry leader when it comes to electric motor starter solutions. Whether it be a contactor, complete motor starter, or soft starter, State Motor & Control Solutions can help you find the equipment that you need to get your project up and running.Our huge inventory of Siemens starters and contactors includes replacement products for parts formerly produced by Furnas Electric ...

Siemens soft starter 3RW55 installation, disassembly and ...

Siemens soft starter 3RW55 installation, disassembly and ...

Siemens 3 Phase Motor Starter Wiring Diagram - Collection ... Siemens 3 Phase Motor Starter Wiring Diagram from . To properly read a electrical wiring diagram, one offers to learn how the particular components in the system operate. For instance , if a module is usually powered up and it sends out a new signal of half the voltage and the technician will not know this, he would think ...

Siemens Industrial Controls 240/480V Motor Starter . 5-22A ...

Siemens Industrial Controls 240/480V Motor Starter . 5-22A ...

Siemen Contactor Wiring Diagram - The Wiring Contacts 4 Pole Control Relay with 2 N.O. The direct on line motor starter dol consist a mccb or circuit breaker contactor and an overload relay for protection. Motor Control Center Wiring Diagram Electrical 4 49ASMP3 49ASMP* Mounting Kit The kit is used for remote mounting the ESP200 with fork terminal for wiring to contactors. […]

Contactor Overload Maintained Switch wiring for Magnetic Motor

Contactor Overload Maintained Switch wiring for Magnetic Motor

PDF Manual SIRIUS 3RM1 Motor Starter - Siemens SIRIUS 3RM1 motor starter 10 Manual, 09/2015, A5E0345285095020A/RS-AD/004 1.3 Scope This manual is valid for SIRIUS 3RM1 motor starters. It contains a description of the motor starter and its functions. It provides information about configuration, commissioning and starters.

Wiring motor starter with control station for jointer - by ...

Wiring motor starter with control station for jointer - by ...

Furnas Magnetic Starter Wiring Diagram - schematron.org L3.Wiring diagrams for Siemens NEMA contactors and starters. Improper wiring can Kill, Injure, Start Fires, Burn Out Motors or any/all of the above. 3ph Starter/3ph Motor¶ Line Voltage Control three phase (3ph) motor starter controlling a three phase motor (rev 08 Aug ) The above wiring diagram assumes your magnetic starter has a V coil.

Siemens sirius soft starter wiring.

Siemens sirius soft starter wiring.

Siemen Motor Starter Wiring Diagram - Wiring Systems Siemens Dol Starter Wiring Diagram New Motor Starter Wiring Diagram. Siemens star delta starter wiring diagram pdf. 800 x 600 px, source: Siemens manual starters and switches are used in many applications for local control of equipment in the industrial or.

Siemens 14CUC32BA Class 14 Full Voltage Non-Reversing Motor Starter, 110 to  120/220 to 240 VAC Coil, 3-Poles

Siemens 14CUC32BA Class 14 Full Voltage Non-Reversing Motor Starter, 110 to 120/220 to 240 VAC Coil, 3-Poles

PDF SIRIUS 3RW52 Soft Starter 1 Support - Siemens SIRIUS 3RW52 Soft Starter . Industrial Controls Soft starters and solid-state switching devices SIRIUS 3RW52 Soft Starter Equipment Manual 04/2020 A5E35630451002A/RS-AE/005 Siemens Industry Online Support 1 Safety information 2 Description 3 Mounting and dismantling 4 Wiring 5 Parameter assignment 6 Commissioning 7 Functions 8

Pump Control Panels | General Purpose | Siemens USA

Pump Control Panels | General Purpose | Siemens USA

Siemens Motor Wiring Diagram - Wiring Diagram and Schematics Siemens 14cub32aa Sie Crum Electric Supply Co. Heavy duty motor starters siemens deekay electricals 14due32aa control of a three phase ac typical wiring diagrams low voltage centers s7 200 plc ladder magnetic starter 14hsj32ba practical machinist largest motors the non reversing manual star delta explained dol 3tw7291 1a esp200 installation 3ru21164ab0 overload relay 11 14cub32aa sie crum how ...

Controls Catalog Siemens and Furnas Brands Contactors

Controls Catalog Siemens and Furnas Brands Contactors

Direct On Line (DOL) Motor Starter

Direct On Line (DOL) Motor Starter

Wiring motor starter with control station for jointer - by BMichs75 ...

Wiring motor starter with control station for jointer - by BMichs75 ...

Practical Machinist - Largest Manufacturing Technology Forum ...

Practical Machinist - Largest Manufacturing Technology Forum ...

Wiring motor starter with control station for jointer - by BMichs75 ...

Wiring motor starter with control station for jointer - by BMichs75 ...

Siemens NEMA Magnetic Motor Starter

Siemens NEMA Magnetic Motor Starter

Agriculture Starter complying to latest standards

Agriculture Starter complying to latest standards

60 Beautiful Motor Starter Wiring Diagram | Electrical ...

60 Beautiful Motor Starter Wiring Diagram | Electrical ...

Controls Catalog

Controls Catalog

Manual Motor Starters and Switches | General Purpose ...

Manual Motor Starters and Switches | General Purpose ...

Practical Machinist - Largest Manufacturing Technology Forum ...

Practical Machinist - Largest Manufacturing Technology Forum ...

Star Delta Starter - (Y-Δ) Starter Power, Control & Wiring ...

Star Delta Starter - (Y-Δ) Starter Power, Control & Wiring ...

Siemens 14GUG32BA SZ 2-1/2 Class 14 Across the Line Full Voltage Heavy Duty  Non-Combination Non-Reversing NEMA Motor Starter, 110 to 120 VAC, 220 to ...

Siemens 14GUG32BA SZ 2-1/2 Class 14 Across the Line Full Voltage Heavy Duty Non-Combination Non-Reversing NEMA Motor Starter, 110 to 120 VAC, 220 to ...

Siemens 17CSD92NF11 Size 0 Fusible Combination Starter 3PH ...

Siemens 17CSD92NF11 Size 0 Fusible Combination Starter 3PH ...

Heavy Duty Motor Starters - Siemens Pages 1-13 - Flip PDF ...

Heavy Duty Motor Starters - Siemens Pages 1-13 - Flip PDF ...

Basic PLC program for control of a three-phase AC motor

Basic PLC program for control of a three-phase AC motor

DOL Starter 3TW7291-1A

DOL Starter 3TW7291-1A

NEMA & General Purpose Controls

NEMA & General Purpose Controls

Siemens 14DUE32BA | Motor Starter | Shop Dreisilker

Siemens 14DUE32BA | Motor Starter | Shop Dreisilker

Sizing The DOL Motor Starter Parts (Contactor, Fuse, Circuit ...

Sizing The DOL Motor Starter Parts (Contactor, Fuse, Circuit ...

Manual Control

Manual Control

Practical Machinist - Largest Manufacturing Technology Forum ...

Practical Machinist - Largest Manufacturing Technology Forum ...

How to wire a contactor and overload. Start stop 3 phase motor control.

How to wire a contactor and overload. Start stop 3 phase motor control.

Contactor Wiring Guide For 3 Phase Motor With Circuit Breaker ...

Contactor Wiring Guide For 3 Phase Motor With Circuit Breaker ...

Siemens – Starters – Deekay Electricals

Siemens – Starters – Deekay Electricals

14BUC32AA

14BUC32AA

0 Response to "40 siemens motor starter wiring diagram"

Post a Comment

Iklan Atas Artikel

Iklan Tengah Artikel 1

Iklan Tengah Artikel 2

Iklan Bawah Artikel